English
Español
Português
русский
Français
日本語
Deutsch
tiếng Việt
Italiano
Nederlands
ภาษาไทย
Polski
한국어
Svenska
magyar
Malay
বাংলা ভাষার
Dansk
Suomi
हिन्दी
Pilipino
Türkçe
Gaeilge
العربية
Indonesia
Norsk
تمل
český
ελληνικά
український
Javanese
فارسی
தமிழ்
తెలుగు
नेपाली
Burmese
български
ລາວ
Latine
Қазақша
Euskal
Azərbaycan
Slovenský jazyk
Македонски
Lietuvos
Eesti Keel
Română
Slovenski
मराठी
Srpski језик Visoms „3-in 1“ pluošto suvirinimo linijoms, pagamintoms „ByJinfeng Weldcut“, turės 12 mėnesių garantiją, kuri yra didžiausia efektyvumo mašina, skirta padidinti galutinių vartotojų produktyvumą nuo plieno konstrukcijos, tilto, statybos.
|
Modelis |
ZHJJ15 |
ZJ18 |
ZHJ20 |
|
„T-Beam WebHeight“ (H) |
200 ~ 1500 mm |
200–1800 |
200–2000 mm |
|
Žiniatinklio storis (D) |
6 ~ 12 mm |
6 ~ 19 mm |
6 ~ 30 mm |
|
Flanšo plotis (B) |
200 ~ 800 mm |
200 ~ 1000 mm |
|
|
Flangethickness (T) |
6 ~ 25 mm |
6 ~ 40 mm |
|
|
Sijos ilgis (L) |
4000 ~ 15000 mm |
4000 ~ 15000 mm |
4000 ~ 15000 mm |
|
Sijos medžiaga |
Q235 |
||
|
Suvirinimo tipas |
Panardintas lanko skersinis filė suvirinimas |
||
|
Suvirinimo energijos šaltinis |
Vienos vielos arba dvynių vielos tipas |
Viena viela |
Viena viela |
|
Suvirinimo išėjimo greitis |
200 ~ 1000 mm/min |
||
|
Toro kampas: |
45 ° smulkus reguliavimas |
||
|
Hidraulinis slėgis |
≤14 MPa |
||
|
Srauto atkūrimo sistema |
2Sets |
||
|
„Flux Hopper“ tūris |
2 × 50L |
||
|
Įvesties konvejerio volas: |
12000 mm |
||
|
Išvesties konvejerio volas: |
12000 mm |
||
|
Pagrindinė mašinos galia |
18,0kW |
||
|
Hidraulinė sistema: |
1SET |
||
|
Tiesinimo vienetas |
1 rinkinys, integruotas mašinoje |
||
|
Maitinimo šaltinis: |
AC/380 V/50 Hz/3PH |
||
|
Tiesinimo galimybė |
6–40 mm |
||
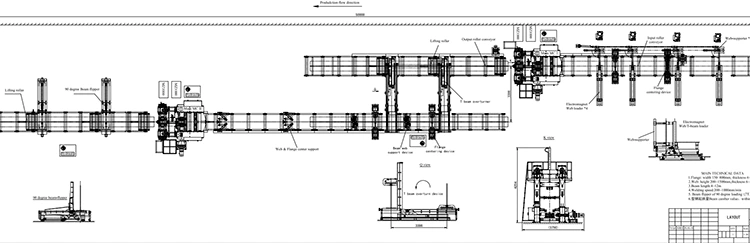
3 colių 1 h pluošto suvirinimo linijos turi kaip H pluošto, T sijos suvirinimo ir flanšo deformacijos tiesinimo jungtinė funkcija po suvirinimo. Taigi jis gali tiksliai ir greitai realizuoti H spindulio gamybą. Tai turi šiuos pranašumus: paprastas veikimas, mažesnės darbo sąnaudos ir maža dangos sritis.
Šioje linijoje yra du pasirenkami suvirinimo procesai, kuriuos galite pasirinkti pagal suvirinimo konstrukcinio plieno plokštės storį:
A parinktis: Vieno lanko dvynių vielos suvirinimas, kurio nusėdimo greitis yra 40% didesnis nei bendras vieno lanko vienos pavienos vielos panardinto lanko suvirinimas, SOT jis ypač tinka konstrukcijos plieno storiui, kurio storis yra mažesnis nei 20 mm.
B variantas: Vieno lanko pavienių vielos suvirinimas. Tinka didesniam plokštelių storio suvirinimo diapazonui.
Standartines ZHJ3-in 1 h spinduliuotės suvirinimo linijas sudaro vienas įvesties ritininis stalas, pagrindinė suvirinimo ir tiesinimo stotis, „Outputroller“ stalas. Pagrindinė suvirinimo ir tiesinimo stotis ten įrengta su srauto atkūrimo vienetais, suvirinimo galvute su žibintuvėliais ir spaustukais, skirtais flanšui ir internete.
1. Standardzhj3-in 1 h pluošto suvirinimo linijos

2. 1 variantas:
Kaip rašoma skirtingose klientų užklausose, mes taip pat pateikiame „TheZHJ3-IN 1 H Beam“ suvirinimo linijų konfigūraciją kaip:
Remdamiesi standartinėmis „3-in-1 H“ pluošto suvirinimo linijomis, pridedamas vienas žiniatinklio kroviklio rinkinys, kuris konkuruoja iš 4 vnt. Magneto pakrovimo rankos ir 4 vnt. Žiniatinklio rėmėjo rinkinį.

3. 2 variantas:
Kaip rašoma skirtingose klientų užklausose, mes taip pat pateikiame „TheZHJ3-IN 1 H Beam“ suvirinimo linijų konfigūraciją kaip:
Remdamiesi standartinėmis „3-in-1 H“ pluošto suvirinimo linijomis, pridedamas vienas žiniatinklio kroviklio rinkinys, kuris konkuruoja iš 4 vnt. Magneto pakrovimo rankos ir 4 vnt. Žiniatinklio rėmėjo rinkinį.
Remdamiesi aukščiau, mes galime pridėti vieną 90 laipsnių sijos pluošto rinkinį ant išvesties ritininio stalo, kad būtų galima apversti suvirintą pluoštą horizontalioje padėtyje.

3. 3 variantas:
Kai kuriems klientams gali tekti padidinti produkcijos išėjimą, jiems reikia vienos suvirinimo linijos, kurią sudaro 2 suvirinimo stoties rinkiniai. Pirmoji suvirinimo stotis 1-ojo flanšo ir žiniatinklio suvirinimui, kad būtų suformuotas T pluoštas, 2-oji, skirta suvirinti suvirintą t-pluoštą ir 2-ąjį flanšą, kad sudarytų H pluoštą.
3.1 Taigi, remiantis standartinėmis „3-in-1 H“ spindulio suvirinimo linijomis, pridedama vienas žiniatinklio kroviklio rinkinys, kuris palaiko 4 vnt. Magneto pakrovimo ranką ir 4 vnt. Žiniatinklio rėmėjo rinkinį.
3.2 Norėdami pridėti 1 „T-pluošto“ apvirtimo rinkinį, kad būtų pasukta „T-sija“ 180 laipsnių kampu, ir padėkite „T-pluoštą“ ant 2-ojo flanšo ant 2-osios suvirinimo stoties įvesties ritininio stalo.
3.3 Norėdami pridėti vieną 90 laipsnių sijos pluošto rinkinį ant 2 -osios suvirinimo stoties išėjimo ritininio stalo, kad būtų galima apversti suvirintą pluoštą horizontalioje padėtyje.
T pluošto ir h-sijos gamybos srautas
„3-in-1“ integruotos „H-Beam“ suvirinimo linijos, įdiegtos vartotojų gamykloje